Pflanzen- und Saatgut- Markt

kaufen, tauschen, schenken, lernen, staunen
Samstag den 2. Mai
von 14 bis 17 Uhr
Wiederholung vorprogrammiert
Vogelkundliche Wanderung

In der Früh am 3. Mai um 6.00 Uhr morgens starten wir an der Isselhorster Kirche zum Dorfspaziergang.
Chronik 2025
Der Isselhorster – Ausgabe 197 – März 2026

Die neue Ausgabe liegt in vielen Ladenlokalen und Banken im Dorf aus.
...oder online zum Durchblättern oder Downloaden.
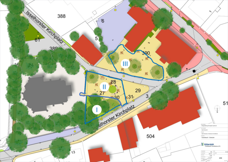
Umgestaltung des Kirchplatzes

Im März 2026 beginnt der I. Bauabschnitt
Dorfreinigung in Isselhorst am 21. März

Es ist eine alte Tradition mit Schulkindern im Frühjahr eine Dorfreinigung durchzuführen, es lassen sich bestimmt wieder einige Müllsäcke füllen.
Der Isselhorster – Ausgabe 196 – Februar 2026

Die neue Ausgabe liegt in vielen Ladenlokalen und Banken im Dorf aus.
...oder online zum Durchblättern oder Downloaden.
Unser Klimawandel

Vortrag am Freitag, 27. Februar 2026 um 19.00 Uhr
Festhalle Isselhorst
Eintritt frei!
Sing mit

Wie kann man sich schöner auf das Fest der Feste einstimmen, als mit einem Abend voller Weihnachtsmelodien zum Mitsingen. Heike Hagenlüke kommt erneut nach Isselhorst und lädt am 19.12.2025 in die Festhalle ein.
