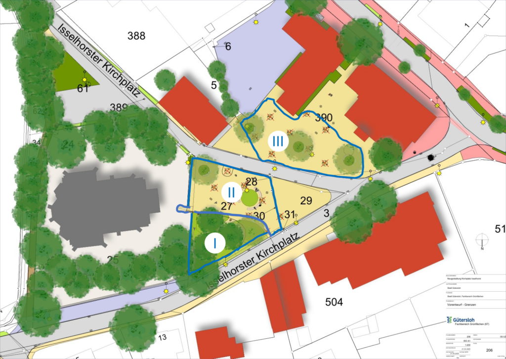
Aufwertung des historischen Dorfmittelpunktes
Umsetzung in Bauabschnitten I – III
I: März 2026
II: 2027
III: 2028
Ausführung durch den
Dorf- und Heimatverein Isselhorst im Rahmen des
Dorfentwicklungskonzeptes 2030
26.02.2026
Schöner und grüner
Leider müssen erst die Bäume, die leider nicht gesund waren gefällt werden, bevor es hier wieder grün werden kann.
24.03.2026
Der erste Bagger ist da
Seit Montag, 23.03. ist Bewegung auf dem Kirchplatz: Die Bauarbeiten haben offiziell begonnen. Ein Bagger hat zunächst alte Pflasterflächen aufgenommen und Rasen abgeschält. Einige Passanten blieben stehen und verfolgten die Arbeiten mit großer Neugier. In den nächsten Tagen wird der Untergrund vorbereitet.
27.03.2026
Tiefbauarbeiten
Die Hauptstromleitung ist freigelegt
28.03.2026
Extraeinsatz
ja, es war eine ziemliche Sauerei 15 Paletten Steine aufzustapeln. Zudem war es auch keine leichte Arbeit für „ältere“ Männer. Ich hoffe, dass ihr eure versauten Klamotten und euch selber wieder sauber bekommt….
Nochmals besten Dank, dass ihr so spontan ins Rad gepackt habt, denn wir konnten die Steine nicht länger da liegen lassen. Gefreut habe ich mich über viele Aussagen von euch wie „immer wieder gerne“, „wenn was ist, sag Bescheid“ oder „bis zum nächsten Mal“. Das zeugt von echtem Vereinsverständnis und so macht die Sache Spaß.
31.03.2026
Die neuen Pflasterflächen sind abgesteckt
Samstag noch das alte Pflaster aufgestapelt, heute werden neue Flächen abgesteckt.
1. April 2026
aufgrund der aktuellen Baumaßnahmen hat sich der Kirchturm von Isselhorst dramatisch geneigt. Die Ursache wird derzeit geprüft.
…aber es wird erst einmal mit der Baustelle weitergemacht. Die ersten Kanten sind gesetzt.
02.04.2026
Das Pflaster kehrt zurück
Das alte Pflaster wird wieder verlegt.
